本套为欧美风格装修,客厅地面采用的是大理石装修,局部采用的是地毯进行装饰,墙面采用的是乳胶漆进行装修,吊顶采用石膏板进行平顶吊顶,加以吸顶灯做装饰,空间以现代时尚、舒适为主。墙面以米黄色漆为主色,配以现代时尚的墙布,结合时代气息的黑镜车边等等装饰元素,使空间高贵典雅,温馨大方,而又尽享低调的奢华,整体给人一种干净大方,精致,明朗宽敞舒适的家,来消除工作的疲惫,忘却都市的喧闹。
1
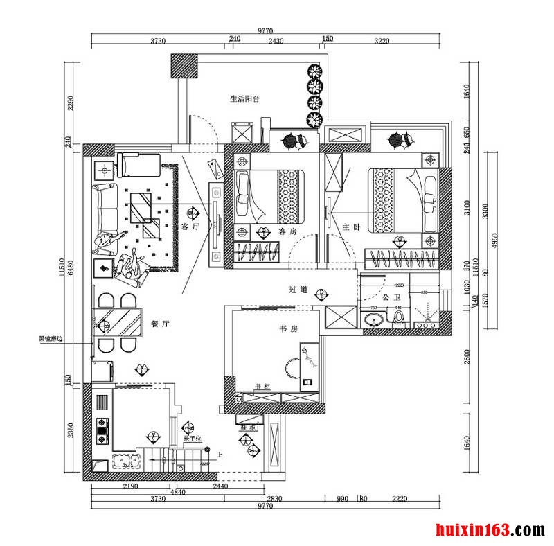
![]() 福苑小区欧美风格装修效果图-平面布置图
|
小区效果图说明
福苑小区位于河北省廊坊市津同公路附近,环境优雅,美观大方,物业管理完善,贴心人性化,地理环境优越,交通便利,周围学校、医院等设施配套齐全。
本套为欧美风格装修,客厅地面采用的是大理石装修,局部采用的是地毯进行装饰,墙面采用的是乳胶漆进行装修,吊顶采用石膏板进行平顶吊顶,加以吸顶灯做装饰,空间以现代时尚、舒适为主。墙面以米黄色漆为主色,配以现代时尚的墙布,结合时代气息的黑镜车边等等装饰元素,使空间高贵典雅,温馨大方,而又尽享低调的奢华,整体给人一种干净大方,精致,明朗宽敞舒适的家,来消除工作的疲惫,忘却都市的喧闹。 更多»推荐小区效果图
共0条 [查看全部] 相关评论
|